





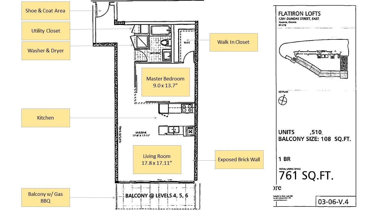
5RIVERDALE/ LESLIEVILLE (Dundas St. E. and Carlaw Ave) - 1201 Dundas Street East, Suite #510 Stylish Loft, Boutique 1 Bedroom with a 108 sq ft Private Patio including Gas BBQ Hook up in Trendy Leslieville! Rent: $2,495/month + Utilities (Approximately $130/month depending upon personal consumption) Square Footage: 761 Sq ft Available: December 1st Laundry: Ensuite Laundry Pets: While no pets are preferred, great pet owners are negotiable, as it is a pet-friendly building. Parking: Underground Heated Parking is available for $195/month Suite #510 at 1201 Dundas Street East is a bright and inviting, spacious one-bedroom loft condo in the heart of Leslieville/South Riverdale, offering industrial character with modern sophistication. You’ll love the move-in-ready & stylish living space. Your unit faces southwest, filling the interior with warm natural light throughout the day. An oversized private balcony (approximately 130 sq ft) extends your living area outdoors and even comes equipped with a gas BBQ hookup, making it an ideal spot to unwind or entertain. A rarity in the condo world for sure! Enjoy this Quiet end-unit with concrete walls for excellent sound insulation. Your spacious 760 square foot unit also comes complete with ensuite laundry, a very large walk in closet (11’ x 6’) featuring built-in drawers and ample storage, Designer kitchen with GE stainless steel gas range, fridge, and dishwasher — ideal for home chefs, an exposed brick wall feature that anchors the living room creating a stunning loft-style finish, Built-in art gallery hanging wall and TV mount anchor. Located in the architecturally striking Flatiron Lofts, the building combines modern loft-style design with the comfort of a boutique community. Inside the unit, you’ll find contemporary finishes and an airy open-concept feel, while the building itself offers thoughtful amenities such as a rooftop deck with a Gas BBQ, entertainment and meeting space, and visitor parking. It’s designed for people who value both style and convenience. The neighbourhood adds even more to the experience. Leslieville and South Riverdale are known for their vibrant character — a mix of cafés, local shops, parks, and quick access to transit keeps you connected to the rest of the city without the intensity of downtown living. It’s the perfect blend of energy and effortlessness. This suite also comes with a secure locker, and parking is available upon request for an extra fee. The building is pet-friendly. Overall, Suite 510 offers a rare combination of comfort, design, and location — ideal for someone who wants to move in and immediately feel at home. Neighbourhood & Connectivity: 5-minute walk to Queen East and Gerrard streetcar lines (direct to downtown in 15–20 mins) Steps to 22 Bus with easy access to Pape Station 5 mins to Gerrard Square (Walmart, LCBO, Home Depot, No Frills, Staples, Winners) Walk to Leslieville’s best restaurants & cafés — Lady Marmalade, Te Aro, East Side Social, Dineen Outpost, La Cubana, Blackjack BBQ, Sweet Jesus Short commute to Downtown Core, Riverside, Danforth, and Beaches Contact today for a viewing: rentals@oroproperties.ca / (647) 544 7368 (RENT)